La résidence Les Lumières est située au cœur du bourg de la Chapelle sur Erdre et propose des appartements du T1 au T4. Les logements disposent d'une terrasse ou d'un balcon ainsi que d'un stationnement. La résidence s'intègre parfaitement dans le quartier. Elle se compose de 14 appartements dont une dizaine sont en vente dans le cadre d'un investissement patrimonial via deux dispositifs :
- Le démembrement de propriété, ce dispositif vous permet d'investir à moindre coût (environ 40% par rapport à sa valeur en pleine propriété.) dans un bien immobilier et d'en devenir pleinement propriétaire sans frais à l'issue de la période minimale de démembrement de 15 ans.
- L'investissement locatif PLS, grâce à ce dispositif vous profitez d'un prix minoré en bénéficiant d'une TVA à 10% et d'un financement attractif indexé sur le taux du livret A.
Vous êtes exonérés de Taxe Foncière pendant 15 ans avec l'un ou l'autre des dispositifs.
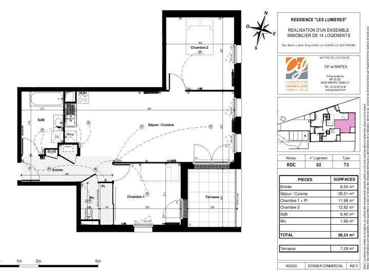
Beau T3 situé au rez-de-chaussée et possédant une terrasse de 7.28m².
Appartement T3
Les Lumieres
39 Rue Martin Luther King , La Chapelle Sur Erdre
- 68 m²
- 3 pièces
193 684 €
soit 632 €/mois
Disponible de suite
Référence : VE549/02
Détail du logement
- Type : T3
- Nombre de pièces : 3
- Étage : RDC
- Salle(s) de bain : 1
- Type : electrique
- Chauffage : individuel
- Nombre de chambres : 2
- Surface habitable : 68 m²
- Surface au sol : 7 m²
- Meublé : non
- Référence : VE549/02
- Tva réduite à 10%
- 1000 euros à la réservation et pas d'appel de fond avant la livraison
- Investissement en nue propriété
- Logement locatif social en vente : prix et frais de notaire réduits
- Entrée : 6.5 m²
- Chambre 1 : 12 m²
- Chambre 2 : 12.6 m²
- WC : 1.7 m²
- Entrée :
- Séjour/Cuisine : 29 m²
- Salle de bains : 6.4 m²
- Terrasse : 7.3 m²
- Parking souterrain 19.39 m²
- Ascenseur
- Chauffage Gaz
- Placard(s) aménagé(s)
- Vitrage double
Offre Investisseur : 1 an de gestion locative offert
Nous vous offrons un an de gestion locative pour toute réservation d'un bien en dispositif PLS investisseur.
- Prix : 193 684 €
- Charges annuelles : 1 200 €
Diagnostic de performance énergétique réalisé après le 1er juillet 2021
Logement de performance B. La note finale retient le moins bon classement des deux.
Logement très performant
10
Logement extrêmement consommateur d'énergie
Indice de mesure : kWhEP/m2.an
Peu d'émissions de CO2
10
Emission de CO2 très importantes
Indice de mesure : kgeqCO2/m2.an
Dont émission de gaz à effet de serre
Estimation des coûts annuels d'énergie : entre 100 € et 100 €/an *
*Prix moyen des énergies calculées au 01/01/2024
Localisation
39 Rue Martin Luther King , La Chapelle Sur Erdre
Logement Neuf appartement T3 VE549/02
Autres établissements
Programme
Les Lumieres
La Chapelle Sur Erdre
Disponible de suite
Vous pourriez aussi aimer...
-
1 images disponibles Neuf
Appartement T3
Nantes - Saint-Joseph de Porterie
264 804 €
soit 866 €/mois
- 63 m²
- 3 pièces
-
1 images disponibles Neuf
Appartement T3
Nantes - Saint-Joseph de Porterie
259 734 €
soit 846 €/mois
- 63 m²
- 3 pièces
-
1 images disponibles Neuf
Appartement T3
Nantes - Saint-Joseph de Porterie
259 734 €
soit 846 €/mois
- 63 m²
- 3 pièces