Située dans un cadre verdoyant face au Bois Sauvage (proche 75 route de Carquefou), Botanik sera habillé de bois afin d'être en harmonie avec l'environnement préservé. Cette résidence sera composée de 56 appartements du T2 au T5, répartis-en 3 bâtiments autour d'un îlot central.
Un tiers des appartements sera commercialisée à prix abordable dans le cadre de la location-accession (PSLA) en TVA réduite (sous conditions de ressources), un tiers sera commercialisée à prix maîtrisé en résidence principale, et un dernier tiers sera ouvert à tous en investissement locatif ou résidence principale.
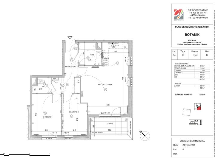
Le CIF vous propose ce beau T3 de 63.85 m2 avec un parking souterrain. Situé au 4ème étage de la résidence, il bénéficie d'une belle pièce de vie avec un coin cuisine. Il se compose de 2 chambres, d'une salle de bain avec un WC séparé. Il est doté d'une loggia exposée sud.
Notre équipe commerciale est à votre disposition pour vous conseiller et vous accompagner dans la concrétisation puis le suivi de votre projet. N'hésitez pas à nous contacter !
Appartement T3
Botanik
Bat. Zac Bat C , Nantes
- 63 m²
- 3 pièces
Disponible de suite
Référence : VE1356/54
Détail du logement
- Type : T3
- Nombre de pièces : 3
- Étage : 4ème
- Exposition du séjour : Sud
- Salle(s) de bain : 1
- Type : gaz
- Chauffage : individuel
- Nombre de chambres : 2
- Surface habitable : 63 m²
- Meublé : non
- Référence : VE1356/54
- 1000 euros à la réservation et pas d'appel de fond avant la livraison
- Des prix 20 à 40% au dessous du marché grâce Nantes Métropole
- Garantie du prix de revente
- Eligible au dispositif Pinel
- Eligible au prêt à taux zéro
- TVA réduite à 5,5%
- Chambre 1 : 11.8 m²
- Entrée :
- Loggia : 6.2 m²
- Séjour/Cuisine : 27.2 m²
- WC : 2.3 m²
- Entrée : 4.5 m²
- Entrée Dégagement : 4 m²
- Salle de bains : 4.7 m²
- Chambre 2 : 9.4 m²
- Parking souterrain 12.6 m²
- Chauffage Gaz
- Fibre optique
- Vidéophone
- Vitrage double
Un an de gestion locative CIF offert pour toute nouvelle réservation
Bénéficiez de notre OFFRE DE GESTION LOCATIVE OFFERTE pendant un an, pour toute nouvelle réservation.
- Prix : 259 734 €
- Charges annuelles : 960 €
Localisation
Bat. Zac Bat C , Nantes
Logement Neuf appartement T3 VE1356/54
Autres établissements
Programme
Botanik
Nantes
Disponible de suite
Vous pourriez aussi aimer...
-
1 images disponibles Neuf
Appartement T3
Nantes - Saint-Joseph de Porterie
259 734 €
soit 846 €/mois
- 63 m²
- 3 pièces
-
1 images disponibles Neuf
Appartement T3
Nantes - Saint-Joseph de Porterie
259 734 €
soit 846 €/mois
- 63 m²
- 3 pièces
-
1 images disponibles Neuf
Appartement T3
Nantes - Saint-Joseph de Porterie
264 804 €
soit 866 €/mois
- 63 m²
- 3 pièces