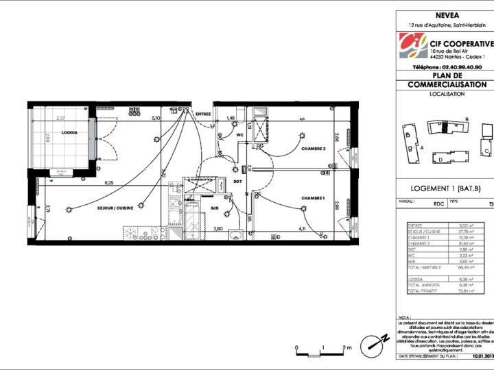
ST HERBLAIN - Quartier Bellevue. A louer dans résidence neuve à livrer fin 2021, logement intermédiaire de type T3 d'environ 67 m², en rez-de-chaussée, comprenant 1 pièce de vie avec meuble évier exposée sud-ouest, 1 salle de bain avec baignoire, 2 chambre dont 1 aménagée avec un placard de rangement, le toilette est indépendant de la salle de bain. Le séjour donne sur une loggia d'environ 6m2.
Il comprend un parking en sous-sol privatif non boxé.
Il est situé dans une copropriété à proximité du tram ligne 1, des commerces, du périphérique (porte de St-Herblain) et des écoles. Location sur plan.
Sous conditions de plafonds de ressources et sans caution.
Appartement T3
Bat. B 14a Rue d'Aquitaine , Saint Herblain
- 66 m²
- 3 pièces
727 € CC
Pas de frais d'agence
Disponible de suite
Référence : LOC1323/B1
Détail du logement
- Type : T3
- Nombre de pièces : 3
- Étage : RDC
- Exposition du séjour : Sud
- Salle(s) de bain : 1
- Chauffage : collectif
- Nombre de chambres : 2
- Surface habitable : 66 m²
- Meublé : non
- Référence : LOC1323/B1
- Logement locatif social en vente : prix et frais de notaire réduits
- Frais d'agence offerts
- Chambre 2 : 10.7 m²
- Chambre 1 : 12 m²
- Entrée Dégagement : 2.9 m²
- WC : 2.1 m²
- Entrée : 5 m²
- Loggia : 6.2 m²
- Entrée :
- Séjour/Cuisine : 28.1 m²
- Salle de bains : 5.6 m²
- Parking 13.5 m²
- Antenne Collective
- Fibre optique
- Transports : Ligne de bus : 23/59/81/91 / Gare : Nantes / Tram : Ligne 1 / Aéroport : Nantes Atlantique / Autoroute : Porte de l'Estuaire
- Écoles : Sensive / Lycee : Albert Camus / Collège : Ernest Renan / Université : Nantes
- Commerces : Supérette, pharmacie, banque, supermarché... / Centre commercial : Atlantis
- Prix : 727 € CC
- Dont charges : 108 €
- Eau chaude comprise : non
- Eau froide comprise : non
- Chauffage compris : non
- Montant du dépôt de garantie : 615,00 €
- Logement non adapté pour la colocation
Localisation
Bat. B 14a Rue d'Aquitaine , Saint Herblain
Logement Location appartement T3 LOC1323/B1
Autres établissements