RUE D'AQUITAINE à SAINT-HERBLAIN - DISPONIBLE 04/10/2021
Appartement T3 NEUF et lumineux au 3ème étage avec ascenseur + 1 place de parking en sous-sol.
Entrée avec placard, séjour/cuisine avec une cuisine aménagée et équipée avec évier, hotte, meubles haut et bas (prévoir réfrigérateur et cuisinière), WC séparés, salle de bains avec baignoire et 2 chambres.
L'appartement est loué 670€ + 90 € de charges. Les charges comprennent une provision pour l'eau chaude et le chauffage (chauffage urbain / relevé de consommations individuel).
Résidence neuve.
Avantages GROUPE CIF : pas de frais d'agence pour les locataires. Garantie loyers impayés sur cet appartement.
Pas de visite possible, le chantier étant interdit au public.
Disponible au 4 OCTOBRE 2021
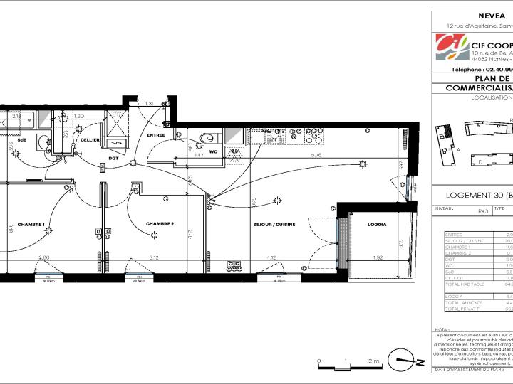
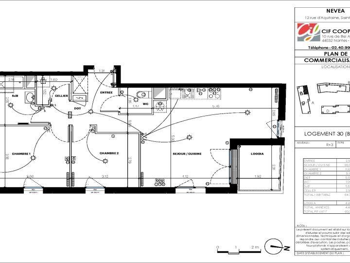
Appartement T3
Bat. a 16b Rue d'Aquitaine , Saint Herblain
- 64 m²
- 3 pièces
760 € CC
Pas de frais d'agence
Disponible de suite
Référence : LOC1324/A30
Détail du logement
- Type : T3
- Nombre de pièces : 3
- Étage : 3ème
- Salle(s) de bain : 1
- Chauffage : collectif
- Nombre de chambres : 2
- Surface habitable : 64 m²
- Meublé : non
- Référence : LOC1324/A30
- Frais d'agence offerts
- Séjour/Cuisine : 26 m²
- Chambre 1 : 11.6 m²
- WC : 2 m²
- Dégagement : 5.1 m²
- Salle de bains : 5.8 m²
- Chambre 2 : 9.1 m²
- Entrée : 2.9 m²
- Cellier : 2.2 m²
- Loggia : 4.5 m²
- Parking 17.98 m²
- Antenne Collective
- Ascenseur
- Vidéophone
- Vitrage double
- Transports : Ligne de bus : 23/59/81/91 / Gare : Nantes / Tram : Ligne 1 / Aéroport : Nantes Atlantique / Autoroute : Porte de l'Estuaire
- Écoles : Sensive / Lycee : Albert Camus / Collège : Ernest Renan / Université : Nantes
- Commerces : Supérette, pharmacie, banque, supermarché... / Centre commercial : Atlantis
- Plafond de ressources Loi PINEL
- Garant impossible (sauf pour les étudiants) car assurance loyers impayés
- Prix : 760 € CC
- Dont charges : 90 €
- Eau chaude comprise : non
- Eau froide comprise : non
- Chauffage compris : non
- Montant du dépôt de garantie : 670,00 €
- Logement non adapté pour la colocation
Diagnostic de performance énergétique réalisé après le 1er juillet 2021
Logement de performance A. La note finale retient le moins bon classement des deux.
Logement très performant
50
Logement extrêmement consommateur d'énergie
Indice de mesure : kWhEP/m2.an
Peu d'émissions de CO2
4
Emission de CO2 très importantes
Indice de mesure : kgeqCO2/m2.an
Dont émission de gaz à effet de serre
Visite virtuelle 360
Localisation
Bat. a 16b Rue d'Aquitaine , Saint Herblain
Logement Location appartement T3 LOC1324/A30
Autres établissements