Situé 96 Avenue Willy Brandt à Rezé, dans le nouvel éco-quartier de la Jaguère.
Appartement 3 pièces LUMINEUX d'une superficie de 62m², situé au 1er étage avec ascenseur d'une résidence datant de 2016.
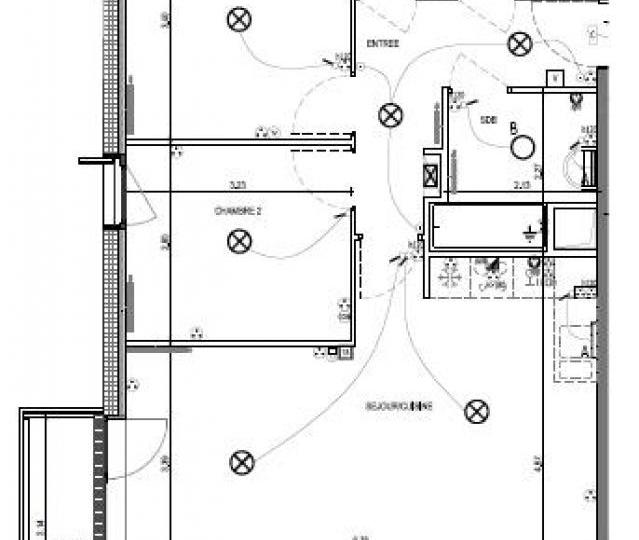
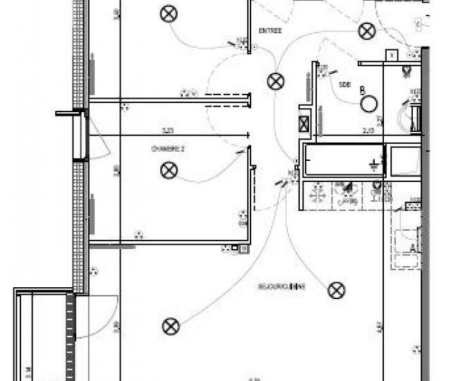
Cet appartement comprend une entrée, un séjour cuisine de 27m², deux chambres, une salle de bain, un WC séparé ainsi qu'un rangement cellier dans l'entrée.
Séjour lumineux donnant sur balcon orienté SUD.
Cet appartement dispose d'un emplacement de parking sécurisé au sous-sol avec un local vélo privatif fermé au bout de la place de parking.
Il a également l'avantage de profiter d'une parcelle de jardin privative de 18m² pour planter fruits, légumes et fleurs tout au long de l'année.
Chauffage et production d'eau chaude par chaudière individuelle gaz. Respect de la réglementation thermique 2012 (RT 2012).
Prestations de la résidence : Sécurisation par vigik, parking en sous-sol sécurisé, locaux vélos, espaces verts communs.
L'achat est réservé à l'acquisition en résidence principale - Investissement locatif impossible.
Visitable et disponible de suite.
Pour obtenir le lien vers la visite virtuelle de l¿appartement, n¿hésitez à nous appeler à l¿agence au 02 40 99 40 80 ou envoyer une demande par mail : territoire-transaction@groupecif.com
Appartement T3
Domaine de la Jaguere
96 Av Willy Brandt Domaine de la Jaguère , Reze
- 62 m²
- 3 pièces
Disponible de suite
Référence : VE977/D58
Détail du logement
- Type : T3
- Nombre de pièces : 3
- Étage : 1er
- Exposition du séjour : Ouest
- Salle(s) de bain : 1
- Type : gaz
- Chauffage : individuel
- Surface habitable : 62 m²
- Meublé : non
- Référence : VE977/D58
- Chambre 1 : 11 m²
- WC : 1.8 m²
- Dégagement 1 :
- Chambre 2 : 9 m²
- Séjour/Salon :
- Séjour/Cuisine : 27.5 m²
- Rangement : 2.3 m²
- Salle de bains : 4.5 m²
- Balcon : 3.7 m²
- Entrée Dégagement : 6.6 m²
- Annexes mixtes 15.51 m²
- Ascenseur
- Chauffage Gaz
- Interphone
- Vidéophone
- Vitrage double
Un an de gestion locative offerte
"Nous n'avons pas vu de chiffres aussi mauvais depuis 2012". Les mines sont graves, ce 25 mai, pour présenter les chiffres de la promotion française au premier trimestre. Pascal Boulanger, le président de la FPI (Fédération des promoteurs immobiliers), relate la forte inquiétude de la profession, devant le constat d'une situation que "se dégrade encore et toujours", à tel point qu'on ne peut plus parler de "trou d'air", mais bien "d'une rupture, d'un décrochage".
- Prix : 216 400 €
- Charges annuelles : 780 €
Visite virtuelle 360
Localisation
96 Av Willy Brandt Domaine de la Jaguère , Reze
Logement Neuf appartement T3 VE977/D58
Autres établissements
Programme
Domaine de la Jaguere
Reze
Disponible de suite