Beau T4 situé au rez-de-chaussée et donnant sur le parc de la résidence clos et sécurisé.
Cet appartement est très lumineux car il dispose d'un séjour traversant et de deux loggias de 18 et 12m².
Cet appartement est exposé SUD-EST et possède un parking sécurisé en sous-sol.
Constituée de 3 bâtiments qui s'articulent autour d'un cœur d'îlot, la résidence ARVOR propose des appartements du T2 au T4 et une maison de santé pluriprofessionnelle. Les logements bénéficient tous de belles ouvertures laissant entrer un maximum de lumière et d'un espace extérieur. Chacun dispose d'un parking souterrain sécurisé et de locaux vélos communs en complément.
Le cœur d'îlot sera clos et aménagé en un jardin mettant en valeur plusieurs beaux arbres déjà existants.
La résidence répond à la dernière norme thermique en vigueur et sera labellisée NF Habitat garantissant un soin particulier apporté à la conception ainsi qu'à l'exécution de l'ouvrage.
Les logements de cette résidence peuvent être achetés, avec une TVA réduite à 5,5%, grâce à l'accession directe à la propriété dans le cadre de la loi ENL-ANRU et pour 4 appartements grâce au dispositif BRS (Bail réel solidaire). La majorité des logements peuvent aussi être acquis sans plafond de ressources ou en investissement locatif (avec un an de gestion locative offert).
Pour votre achat en résidence principale, vous bénéficierez d'une garantie de 15 ans du prix de revente
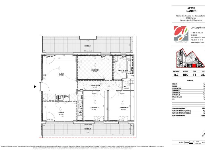
Appartement T4
Arvor
Rue Cartier , Saint Herblain
- 76 m²
- 4 pièces
199 700 €
soit 651 €/mois
Disponible de suite
Référence : VE1385/253
Détail du logement
- Type : T4
- Nombre de pièces : 4
- Étage : RDC
- Exposition du séjour : Sud
- Salle(s) de bain : 1
- Type : electrique
- Chauffage : individuel
- Nombre de chambres : 3
- Surface habitable : 76 m²
- Surface au sol : 30 m²
- Meublé : non
- Référence : VE1385/253
- 1000 euros à la réservation et pas d'appel de fond avant la livraison
- Garantie du prix de revente
- Eligible au dispositif Pinel
- Eligible au prêt à taux zéro
- TVA réduite à 5,5%
- Salle de bains : 5.9 m²
- Cuisine : 12.1 m²
- Chambre 1 : 11.5 m²
- Loggia 2 : 12.4 m²
- Salle de séjour : 19.1 m²
- Entrée Dégagement : 6.2 m²
- Chambre 2 : 10.3 m²
- Chambre 3 : 9.8 m²
- WC : 1.7 m²
- Loggia : 18 m²
- Parking souterrain 19.24 m²
- Ascenseur
- Transports : Ligne de bus : Chêne des Anglais / Gare : Gare de Nantes / Tram : Chêne des Anglais / Aéroport : Nantes-Atlantique / Autoroute : Porte de Gesvres - Echangeur n°38
- Écoles : George Sand / Lycee : Monge / Collège : Stendhal / Université : Campus du Petit Port
- Commerces : Chêne des Anglais - Santos Dumont / Centre commercial : Grand Val
- Prix : 199 700 €
- Charges annuelles : 840 €
Localisation
Rue Cartier , Saint Herblain
Logement Neuf appartement T4 VE1385/253
Autres établissements
Programme
Arvor
Saint Herblain
Disponible de suite
Vous pourriez aussi aimer...
-
1 images disponibles Neuf
Appartement T4
Saint Herblain - René Cassin
231 506 €
soit 754 €/mois
- 82 m²
- 4 pièces
-
1 images disponibles Neuf
Appartement T4
Saint Herblain - René Cassin
238 056 €
soit 776 €/mois
- 82 m²
- 4 pièces
-
1 images disponibles Neuf
Appartement T4
Saint Herblain - René Cassin
240 056 €
soit 782 €/mois
- 82 m²
- 4 pièces