Constituée de 3 bâtiments qui s'articulent autour d'un cœur d'îlot, la résidence ARVOR propose des appartements du T2 au T4 et une maison de santé pluriprofessionnelle. Les logements bénéficient tous de belles ouvertures laissant entrer un maximum de lumière et d'un espace extérieur. Chacun dispose d'un parking souterrain sécurisé et de locaux vélos communs en complément.
Le cœur d'îlot sera aménagé en un jardin mettant en valeur plusieurs beaux arbres déjà existants.
La résidence répond à la dernière norme thermique en vigueur et sera labellisée NF Habitat garantissant un soin particulier apporté à la conception ainsi qu'à l'exécution de l'ouvrage.
Cette résidence répond à tous les projets :
- Acquisition de votre résidence principale, bénéficiez de la TVA à taux réduit (sous conditions de ressources).
- En investissement locatif, profitez de la loi PINEL
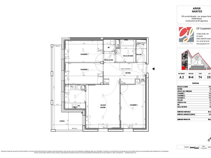
Beau T4 situé au quatrième étage et possédant une belle loggia de 13.99m².
Cet appartement est desservi par un ascenseur.
Appartement T4
Arvor
Rue Cartier , Saint Herblain
- 81 m²
- 4 pièces
243 056 €
soit 792 €/mois
Disponible de suite
Référence : VE1385/237
Détail du logement
- Type : T4
- Nombre de pièces : 4
- Étage : 4ème
- Salle(s) de bain : 1
- Type : electrique
- Chauffage : individuel
- Nombre de chambres : 3
- Surface habitable : 81 m²
- Surface au sol : 13 m²
- Meublé : non
- Référence : VE1385/237
- 1000 euros à la réservation et pas d'appel de fond avant la livraison
- Garantie du prix de revente
- Eligible au dispositif Pinel
- Eligible au prêt à taux zéro
- TVA réduite à 5,5%
- Séjour/Cuisine : 24.8 m²
- Chambre 2 : 10.2 m²
- Loggia : 14 m²
- Entrée :
- Bureau :
- Entrée : 9.4 m²
- Cellier : 2.5 m²
- Salle de bains : 5.2 m²
- Entrée Dégagement : 1.6 m²
- WC : 1.7 m²
- Chambre 1 : 14.2 m²
- Chambre 3 : 10.5 m²
- Bureau : 1.1 m²
- Parking souterrain 18.67 m²
- Ascenseur
- Transports : Ligne de bus : Chêne des Anglais / Gare : Gare de Nantes / Tram : Chêne des Anglais / Aéroport : Nantes-Atlantique / Autoroute : Porte de Gesvres - Echangeur n°38
- Écoles : George Sand / Lycee : Monge / Collège : Stendhal / Université : Campus du Petit Port
- Commerces : Chêne des Anglais - Santos Dumont / Centre commercial : Grand Val
- Prix : 243 056 €
- Charges annuelles : 840 €
Localisation
Rue Cartier , Saint Herblain
Logement Neuf appartement T4 VE1385/237
Autres établissements
Programme
Arvor
Saint Herblain
Disponible de suite
Vous pourriez aussi aimer...
-
1 images disponibles Neuf
Appartement T4
Saint Herblain - René Cassin
240 056 €
soit 782 €/mois
- 82 m²
- 4 pièces
-
1 images disponibles Neuf
Appartement T4
Saint Herblain - René Cassin
246 056 €
soit 802 €/mois
- 82 m²
- 4 pièces
-
1 images disponibles Neuf
Appartement T4
Saint Herblain - René Cassin
238 056 €
soit 776 €/mois
- 82 m²
- 4 pièces