Constituée de 3 bâtiments qui s'articulent autour d'un cœur d'îlot, la résidence ARVOR propose des appartements du T2 au T4 et une maison de santé pluriprofessionnelle. Les logements bénéficient tous de belles ouvertures laissant entrer un maximum de lumière et d'un espace extérieur. Chacun dispose d'un parking souterrain sécurisé et de locaux vélos communs en complément.
Le cœur d'îlot sera aménagé en un jardin mettant en valeur plusieurs beaux arbres déjà existants.
La résidence répond à la dernière norme thermique en vigueur et sera labellisée NF Habitat garantissant un soin particulier apporté à la conception ainsi qu'à l'exécution de l'ouvrage.
Cette résidence répond à tous les projets :
- Acquisition de votre résidence principale, bénéficiez de la TVA à taux réduit (sous conditions de ressources).
- En investissement locatif, profitez de la loi PINEL
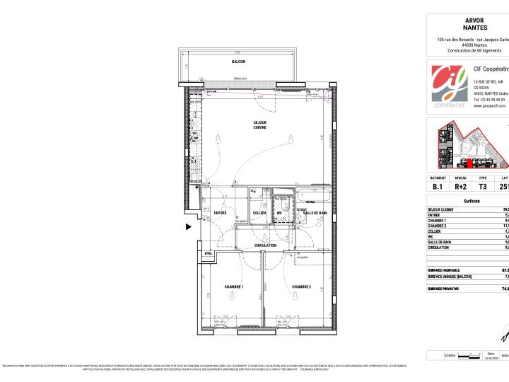
Beau T3 situé au dernier étage et possédant un balcon avec une vue dégagée sur le jardin privatif de la résidence.
Cet appartement dispose d'une belle pièce à vivre de 29.52m² et est orienté SUD-EST.
Appartement T3
Arvor
Rue Cartier , Saint Herblain
- 67 m²
- 3 pièces
215 836 €
soit 704 €/mois
Disponible de suite
Référence : VE1385/251
Détail du logement
- Type : T3
- Nombre de pièces : 3
- Étage : 2ème
- Exposition du séjour : Sud
- Salle(s) de bain : 1
- Type : electrique
- Chauffage : individuel
- Nombre de chambres : 2
- Surface habitable : 67 m²
- Surface au sol : 7 m²
- Meublé : non
- Référence : VE1385/251
- 1000 euros à la réservation et pas d'appel de fond avant la livraison
- Garantie du prix de revente
- Eligible au dispositif Pinel
- Eligible au prêt à taux zéro
- TVA réduite à 5,5%
- Séjour/Cuisine : 29.5 m²
- Entrée :
- Salle de bains : 5.1 m²
- Balcon : 7.5 m²
- Entrée : 5.7 m²
- Cellier : 1.7 m²
- Chambre 1 : 9.4 m²
- Chambre 2 : 11.1 m²
- Entrée Dégagement : 3.2 m²
- WC : 1.3 m²
- Parking souterrain 14.39 m²
- Ascenseur
- Transports : Ligne de bus : Chêne des Anglais / Gare : Gare de Nantes / Tram : Chêne des Anglais / Aéroport : Nantes-Atlantique / Autoroute : Porte de Gesvres - Echangeur n°38
- Écoles : George Sand / Lycee : Monge / Collège : Stendhal / Université : Campus du Petit Port
- Commerces : Chêne des Anglais - Santos Dumont / Centre commercial : Grand Val
- Prix : 215 836 €
- Charges annuelles : 720 €
Localisation
Rue Cartier , Saint Herblain
Logement Neuf appartement T3 VE1385/251
Autres établissements
Programme
Arvor
Saint Herblain
Disponible de suite
Vous pourriez aussi aimer...
-
1 images disponibles Neuf
Appartement T3
Saint Herblain - René Cassin
199 440 €
soit 650 €/mois
- 64 m²
- 3 pièces
-
1 images disponibles Neuf
Appartement T3
Saint Herblain - René Cassin
193 836 €
soit 632 €/mois
- 64 m²
- 3 pièces
-
2 images disponibles Neuf
Appartement T3
Nantes - Chantenay
353 000 €
soit 1 391 €/mois
- 73 m²
- 3 pièces