Constituée de 3 bâtiments qui s'articulent autour d'un cœur d'îlot, la résidence ARVOR propose des appartements du T2 au T4 et une maison de santé pluriprofessionnelle. Les logements bénéficient tous de belles ouvertures laissant entrer un maximum de lumière et d'un espace extérieur. Chacun dispose d'un parking souterrain sécurisé et de locaux vélos communs en complément.
Le cœur d'îlot sera aménagé en un jardin mettant en valeur plusieurs beaux arbres déjà existants.
La résidence répond à la dernière norme thermique en vigueur et sera labellisée NF Habitat garantissant un soin particulier apporté à la conception ainsi qu'à l'exécution de l'ouvrage.
Cette résidence répond à tous les projets :
- Acquisition de votre résidence principale, bénéficiez de la TVA à taux réduit (sous conditions de ressources).
- En investissement locatif, profitez de la loi PINEL
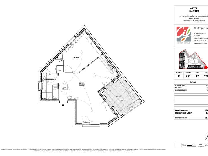
Beau T2 situé au dernier étage et possédant une loggia de 10m².
Cet appartement dispose d'une belle pièce à vivre de 33.20m² et est exposé SUD.
Appartement T2
Arvor
Rue Cartier , Saint Herblain
- 53 m²
- 2 pièces
179 042 €
soit 695 €/mois
Disponible de suite
Référence : VE1385/268
Détail du logement
- Type : T2
- Nombre de pièces : 2
- Étage : 1er
- Exposition du séjour : Sud
- Salle(s) de bain : 1
- Type : electrique
- Chauffage : individuel
- Nombre de chambres : 1
- Surface habitable : 53 m²
- Surface au sol : 10 m²
- Meublé : non
- Référence : VE1385/268
- 1000 euros à la réservation et pas d'appel de fond avant la livraison
- Garantie du prix de revente
- Eligible au dispositif Pinel
- Eligible au prêt à taux zéro
- TVA réduite à 5,5%
- Loggia : 10 m²
- Séjour/Cuisine : 33.2 m²
- Chambre 1 : 12.7 m²
- Salle d''eau/ toilettes : 7.1 m²
- Parking souterrain 25 m²
- Ascenseur
- Transports : Ligne de bus : Chêne des Anglais / Gare : Gare de Nantes / Tram : Chêne des Anglais / Aéroport : Nantes-Atlantique / Autoroute : Porte de Gesvres - Echangeur n°38
- Écoles : George Sand / Lycee : Monge / Collège : Stendhal / Université : Campus du Petit Port
- Commerces : Chêne des Anglais - Santos Dumont / Centre commercial : Grand Val
- Prix : 179 042 €
- Charges annuelles : 600 €
Localisation
Rue Cartier , Saint Herblain
Logement Neuf appartement T2 VE1385/268
Autres établissements
Programme
Arvor
Saint Herblain
Disponible de suite
Vous pourriez aussi aimer...
-
1 images disponibles Neuf
Appartement T2
Saint Herblain - René Cassin
166 374 €
soit 637 €/mois
- 48 m²
- 2 pièces
-
1 images disponibles Neuf
Appartement T2
Saint Herblain - René Cassin
166 057 €
soit 635 €/mois
- 49 m²
- 2 pièces
-
1 images disponibles Neuf
Appartement T2
Saint Herblain - René Cassin
166 057 €
soit 635 €/mois
- 49 m²
- 2 pièces