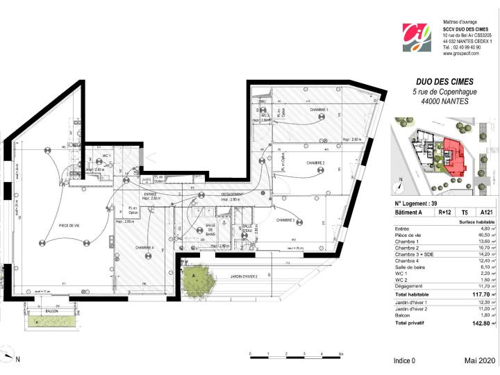
Superbe T5 de 118 m², 2 jardins d'hiver de 18 m² et 11 m², 1 balcon, triplement exposé, au 12ème étage avec vue dominante. Il dispose d'un séjour plein Sud de 41 m², de 4 chambres dont une avec SDE, une SDB, 2 WC,.
Il se situe dans la résidence végétalisée Duo des Cimes située au cœur de Nantes à proximité de la gare Sud, du centre historique et de la Loire.
Au douzième étage, la résidence abrite un grand jardin offrant une vue imprenable sur Nantes. Celui-ci est accessible à tous les habitants de la résidence pour leur permettre de profiter de cet écrin de verdure en plein ciel de Nantes.
Appartement exclusivement réservé pour un achat sous plafond de ressources avec 4 occupants minimum et en primo-accession.
Appartement T5 et plus
Duo des Cimes
Bat. a 5 Rue de Copenhague , Nantes
- 117 m²
- 5 pièces
Disponible de suite
Référence : VE1384/40
Détail du logement
- Type : T5 et plus
- Nombre de pièces : 5
- Étage : 12ème
- Exposition du séjour : Sud
- Salle(s) de bain : 1
- Chauffage : collectif
- Nombre de chambres : 4
- Surface habitable : 117 m²
- Surface au sol : 25 m²
- Meublé : non
- Référence : VE1384/40
- Des prix 20 à 40% au dessous du marché grâce Nantes Métropole
- Eligible au dispositif Pinel
- Eligible au prêt à taux zéro
- TVA réduite à 5,5%
- Eligible au dispositif Pinel Plus
- Entrée Dégagement : 11.7 m²
- Chambre 1 : 13.6 m²
- Chambre 4 : 12.4 m²
- Entrée :
- Séjour/Cuisine : 40.5 m²
- Chambre 3 : 14.2 m²
- Jardin Hiver 1 : 12.3 m²
- Balcon : 1.8 m²
- Chambre 2 : 10.7 m²
- Entrée : 4.8 m²
- Jardin Hiver 2 : 11 m²
- Salle de bains : 6.1 m²
- WC 2 : 1.5 m²
- WC : 2.2 m²
- Parking en droit d'usage 12.5 m²
- Parking en droit d'usage 13.1 m²
- Antenne Collective
- Ascenseur
- Fibre optique
- Vidéophone
- Transports : Ligne de bus : Chronobus C2 busway 5 / Gare : SNCF / Tram : Ligne 1 / Aéroport : Nantes Atlantique
- Écoles : Henri Bergson / Lycee : Nelson Mandela / Collège : Sophie Germain / Université : Facs de Nantes
- Commerces : Centre-ville / Centre commercial : Beaulieu
OFFRE SPECIALE pour HABITER ou INVESTIR
Profitez de nos derniers logements disponibles avec une remise commerciale de 7.000 à 35.000 euros (déjà déduite du prix affiché). Pour HABITER : profitez du nouveau prêt à taux 0% de l'Etat et d'un prêt bancaire complémentaire à 0% INVESTISSEUR Pinel ou meublé : bénéficiez d'un 1 an de gestion locative CIF offert et de notre accompagnement complet sur tous les aspects du meublé LMNP ou LMP (comptabilité, juridique, ameublement...) INVESTISSEUR : nous vous OFFRONS 1 an de gestion locative CIF et notre accompagnement complet sur tous les aspects du meublé LMNP ou LMP (comptabilité, juridique, ameublement...)
- Prix : 486 000 €
- Charges annuelles : 2 496 €
Localisation
Bat. a 5 Rue de Copenhague , Nantes
Logement Neuf appartement T5 et plus VE1384/40
Autres établissements
Programme
Duo des Cimes
Nantes
Disponible de suite