NOUVELLE RESIDENCE - NANTES CROIX-BONNEAU
Située à deux pas du Jardin extraordinaire, le long de la ligne 1 du tramway, à 15 minutes de la gare et du centre-ville de Nantes, la résidence Inspiration s'élève sur 4 bâtiments de 2 à 5 étages et propose 39 appartements profitant d'un de prestations de qualité dans un environnement sécurisé.
Tous les logements disposent d'un espace extérieur (terrasse, balcon ou loggia) et d'un parking au sous-sol; certains ont également un cellier sur le balcon ou en sous-sol.
Les appartements du T2 au T4 sont destinés à l'acquisition en résidence principale OU à l'investissement locatif (loi Pinel ou PLS Investisseurs par exemple), au choix de l'occupant.
La résidence répondra à la dernière norme thermiqueRT2012 et sera labellisée NF Habitat garantissant un soin particulier apporté à la conception ainsi qu'à l'exécution de l'ouvrage.
AVANTAGE GROUPE CIF : Pas d'appel de fonds pendant la construction. 1 000€ à la réservation, le solde à la livraison.
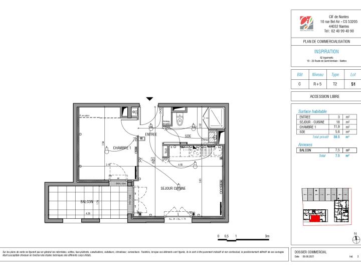
Appartement T2
Inspiration
Bat. C 19-23 Rte de St Herblain , Nantes
- 38 m²
- 2 pièces
Disponible de suite
Référence : VE1394/C_51
Détail du logement
- Type : T2
- Nombre de pièces : 2
- Étage : 5ème
- Exposition du séjour : Sud
- Salle(s) de bain : 1
- Type : gaz
- Chauffage : individuel
- Nombre de chambres : 1
- Surface habitable : 38 m²
- Meublé : non
- Référence : VE1394/C_51
- 1000 euros à la réservation et pas d'appel de fond avant la livraison
- Eligible au prêt à taux zéro
- Eligible au dispositif Pinel Plus
- Salle d''eau/ toilettes : 5.6 m²
- Entrée :
- Séjour/Cuisine : 18 m²
- Entrée : 3 m²
- Chambre 1 : 11.9 m²
- Balcon : 7.5 m²
- Parking 13.5 m²
- Ascenseur
- Chauffage Gaz
- Vidéophone
- Transports : Ligne de bus : Croix Bonneau / Gare : NANTES / Tram : Croix Bonneau / Aéroport : NANTES / Autoroute : NANTES
- Écoles : LUCIE AUBRAC / Lycee : ALBERT CAMUS / Collège : CLAUDE DEBUSSY / Université : NANTES
- Commerces : Boulangerie, pharmacie, coiffeur / Centre commercial : CARREFOUR
Offre de lancement : REMISE de 15.000 euros et 1 an de gestion offert
Bénéficiez de notre OFFRE DE LANCEMENT avec une REDUCTION DU PRIX DE 15.000 euros sur l'achat de votre logement (les prix indiqués tiennent compte de cette réduction) et un an de gestion locative CIF OFFERT. Saut de ligne Saut de ligne Saut de ligne
- Prix : 211 800 €
- Charges annuelles : 600 €
Localisation
Bat. C 19-23 Rte de St Herblain , Nantes
Logement Neuf appartement T2 VE1394/C_51
Autres établissements
Programme
Inspiration
Nantes
Disponible de suite
Vous pourriez aussi aimer...
-
2 images disponibles Neuf
Appartement T2
Nantes - Chantenay
211 000 €
soit 890 €/mois
- 38 m²
- 2 pièces
-
2 images disponibles Neuf
Appartement T2
Nantes - Chantenay
207 000 €
soit 871 €/mois
- 42 m²
- 2 pièces
-
2 images disponibles Neuf
Appartement T2
Nantes - Chantenay
207 000 €
soit 871 €/mois
- 38 m²
- 2 pièces