Agora propose 55 appartements du T1 bis au T5 duplex disposant tous d'un espace extérieur et d'un parking privatif. Des locaux vélos communs seront également mis à disposition.
Agora répondra aux dernières normes thermiques et sera labellisée NF Habitat garantissant un soin particulier apporté à la conception ainsi qu'à l'exécution de l'ouvrage.
Les appartements neufs sont destinés aussi bien à la résidence principale dans le cadre de l'Accession Abordable Nantes Métropole (AANM), la Location-Accession (PSLA), et l'accession libre, qu'à l'investissement locatif en loi PINEL.
Agora est situé à l'est de Nantes, au sein du quartier Bottière Pin Sec à proximité du tram qui relie le centre-ville en 10 min.
Appartement T3
Agora
Bat. N Rue Rue de la Bottière Lot Q1a , Nantes
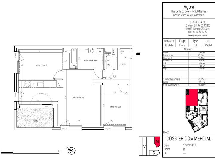
- 63 m²
- 3 pièces
165 000 €
soit 539 €/mois
Disponible de suite
Référence : VE1321/20A
Détail du logement
- Type : T3
- Nombre de pièces : 3
- Étage : 2ème
- Exposition du séjour : Sud
- Salle(s) de bain : 1
- Chauffage : urbain
- Nombre de chambres : 2
- Surface habitable : 63 m²
- Surface au sol : 6 m²
- Meublé : non
- Référence : VE1321/20A
- Des prix 20 à 40% au dessous du marché grâce Nantes Métropole
- Garantie du prix de revente
- Eligible au dispositif Pinel
- Eligible au prêt à taux zéro
- Eligible au dispositif Location-Accesion PSLA
- TVA réduite à 5,5%
- Entrée :
- Séjour/Cuisine : 26.9 m²
- Entrée Dégagement : 4.5 m²
- WC : 1.3 m²
- Salle de bains : 6.1 m²
- Loggia : 6.2 m²
- Chambre 1 : 12.4 m²
- Chambre 2 : 9.5 m²
- Entrée : 2.8 m²
- Parking souterrain 13.05 m²
- Antenne Collective
- Ascenseur
- Interphone
- Vitrage double
- Transports : Ligne de bus : Lippmann / Gare : Gare Nord / Tram : Souillarderie / Aéroport : Nantes Atlantique / Autoroute : Porte de Ste Luce
- Écoles : Bottière et Urbain Le Verrier / Lycee : Colinière / Collège : Noé Lambert et Colinière / Université : Campus du Petit Port
- Commerces : Super U Bottière Chénaie - Lidl / Centre commercial : Paridis
- Prix : 165 000 €
- Charges annuelles : 1 440 €
Localisation
Bat. N Rue Rue de la Bottière Lot Q1a , Nantes
Logement Neuf appartement T3 VE1321/20A
Autres établissements
Programme
Agora
Nantes
Disponible de suite
Vous pourriez aussi aimer...
-
2 images disponibles Neuf
Appartement T3
Nantes - Gare Sud
157 615 €
soit 515 €/mois
- 62 m²
- 3 pièces
-
2 images disponibles Neuf
Appartement T3
Nantes - Gare Sud
441 000 €
soit 2 000 €/mois
- 108 m²
- 3 pièces
-
2 images disponibles Neuf
Appartement T3
Nantes - Gare Sud
170 389 €
soit 556 €/mois
- 60 m²
- 3 pièces