La résidence Les Lumières est située au cœur du bourg de la Chapelle sur Erdre et propose des appartements du T1 au T4 . Les logements disposent d'une terrasse ou d'un balcon ainsi que d'un stationnement. La résidence s'intègre parfaitement dans le quartier. Résidence intimiste avec ascenseur, elle se compose de 14 appartements dont une dizaine sont en vente dans le cadre d'un investissement patrimonial via deux dispositifs :
- Le démembrement de propriété, ce dispositif vous permet d'investir à moindre coût (environ 40% par rapport à sa valeur en pleine propriété.) dans un bien immobilier et d'en devenir pleinement propriétaire sans frais à l'issue de la période minimale de démembrement de 15 ans.
- L'investissement locatif PLS, grâce à ce dispositif vous profitez d'un prix minoré en bénéficiant d'une TVA à 10% et d'un financement attractif indexé sur le taux du livret A.
Vous êtes exonérés de Taxe Foncière pendant 15 ans avec l'un ou l'autre des dispositifs.
Au dernier étage, au calme, nous vous proposons un beau T2 de plus de 50m2 avec balcon
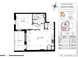
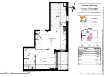
Appartement T2
Les Lumieres
39 Rue Martin Luther King , La Chapelle Sur Erdre
- 50 m²
- 2 pièces
202 022 €
soit 848 €/mois
Disponible de suite
Référence : VE549/14
Détail du logement
- Type : T2
- Nombre de pièces : 2
- Étage : 3ème
- Salle(s) de bain : 1
- Type : electrique
- Chauffage : individuel
- Nombre de chambres : 1
- Surface habitable : 50 m²
- Surface au sol : 5 m²
- Meublé : non
- Référence : VE549/14
- Tva réduite à 10%
- 1000 euros à la réservation et pas d'appel de fond avant la livraison
- Investissement en nue propriété
- Entrée :
- Balcon : 5.5 m²
- Salle d''eau/ toilettes : 4.6 m²
- WC : 3.7 m²
- Séjour/Cuisine : 24.3 m²
- Chambre 1 : 12.8 m²
- Entrée : 5 m²
- Parking souterrain 13.54 m²
- Ascenseur
- Chauffage Gaz
- Placard(s) aménagé(s)
- Vitrage double
Offre Investisseur : 1 an de gestion locative offert
Nous vous offrons un an de gestion locative pour toute réservation d'un bien en dispositif PLS investisseur.
- Prix : 202 022 €
- Charges annuelles : 960 €
Localisation
39 Rue Martin Luther King , La Chapelle Sur Erdre
Logement Neuf appartement T2 VE549/14
Autres établissements
Programme
Les Lumieres
La Chapelle Sur Erdre
Disponible de suite
Vous pourriez aussi aimer...
-
1 images disponibles Neuf
Appartement T2
La Chapelle Sur Erdre
182 817 €
soit 713 €/mois
- 46 m²
- 2 pièces
-
1 images disponibles Neuf
Appartement T2
La Chapelle Sur Erdre
181 542 €
soit 707 €/mois
- 46 m²
- 2 pièces
-
1 images disponibles Neuf
Appartement T2
La Chapelle Sur Erdre
163 769 €
soit 561 €/mois
- 46 m²
- 2 pièces